关于九龙园区亿通磁业有限公司地块规划方案的公示
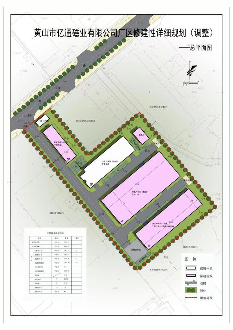
九龙园区亿通磁业有限公司地块位于乐山路南侧,用地面积6642.3平方米,性质为工业用地。地块主要规划建设2#、3#厂房及研发车间、配电房等,原有保留建筑1#厂房及门卫房一处,总建筑面积为7488.61平方米,总计容建筑面积为9236.83平方米,容积率1.39(详细指标详见公示图)。经审查地块方案建筑间距、退让等满足相关规范要求,根据有关规定,现将方案总平面图和效果图予以公示,如有意见和建议,请在公示期内向我局反馈。
公示时间:七个工作日(2023年3月24日至4月3日)
联系人:程先生
联系电话:0559-2330676
公示方式:
一、公示网址:黄山市自然资源和规划局
二、现场公示:项目地块现场
三、固定场所公示:黄山市自然资源和规划局一楼公示栏


黄山市自然资源和规划局
二〇二三年三月二十四日
皖公网安备34100002000108号