关于黄山市人民医院妇儿分院项目增设连廊方案的公示
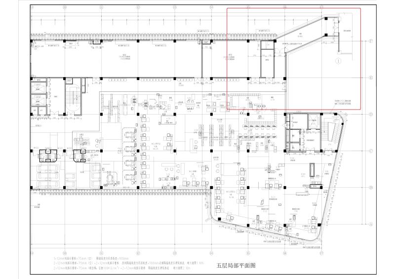
黄山市人民医院妇儿分院项目位于柏树路北侧,项目规划设计方案于2021年5月批复,规划建设5-16层大楼。为方便患者转运,避免后期重复建设,市医院结合实际医技资源情况,在妇儿分院大楼建设过程中同步建设连廊与综合病房大楼五层处相连,连廊长14.35米,宽3.75米,连廊方案前期经施工图审查满足相关规范要求。为完善相关手续,现将增设的连廊方案(五层局部平面图)予以公示,如有意见和建议,请在公示期内向我局反馈。
公示时间:七个工作日(2026年1月7日至15日)
联系方式: 周女士 0559-2330673
公示网址:黄山市自然资源和规划局网站(https://zrzyj.huangshan.gov.cn/)
现场公示:项目地块现场
黄山市自然资源和规划局
二〇二六年一月七日

皖公网安备34100002000108号